Description
Idéalement situé entre mer et montagne, ce programme neuf se trouve à seulement 10 minutes des plages de Saint-Cyprien et de Cala Rossa, ainsi que du centre de Porto-Vecchio.
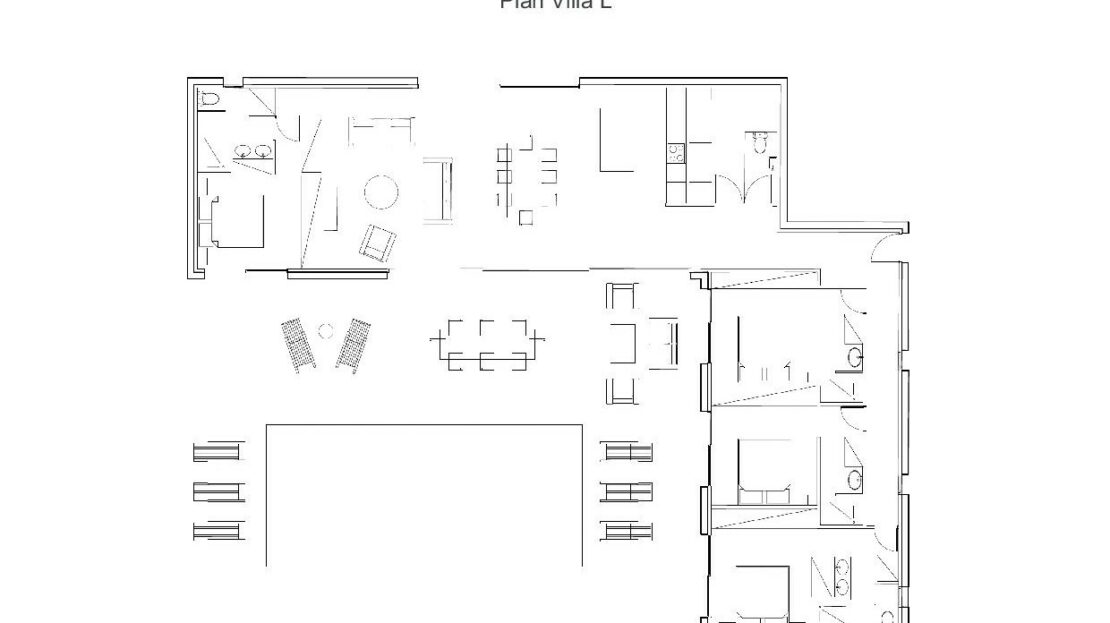
Cette résidence intimiste et sécurisée comportera 18 villas individuelles de plain-pied ,chacune dotée de sa piscine privative et offrant une vue dégagée sur les montagnes.
Nous vous proposons 4 modèles de villas de 4 chambres, aux superficies comprises entre 145m² à 185m².
Selon la configuration des terrains, leur architecture adoptera une forme en L ou en U.
Les villas se distinguent par de vastes pièces à vivre comprenant salon, salle à manger et cuisine ouverte, ainsi que quatre chambres élégantes, chacune disposant de sa propre salle d’eau.
L’ensemble donnant sur terrasses côté piscine.
Les informations sur les risques auxquels ce bien est exposé sont disponibles sur le site Géorisques : https://www.georisques.gouv.fr









